Double Storey Semi Detached warehouse for Sale @ Muara Tabuan (VIP – Vista Industrial Park)
Selling Rm1.65mil
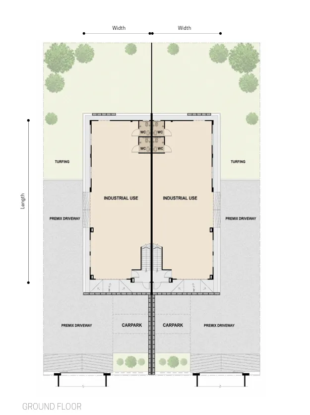
Land Size : 14.82 points
Floor Area: 3356 sq ft
Building Dimension: 8.8m (W) x 18m (L)
.
Please contact/WhatsApp 016 8955 321 (Alex) for viewing appointment.
https://wasap.my/60168955321
RM1,380,000
Added: 2025-03-13
Saradise Double Storey Semi Detached
Owning a home is a keystone of wealth… both financial affluence and emotional security.
Suze Orman